




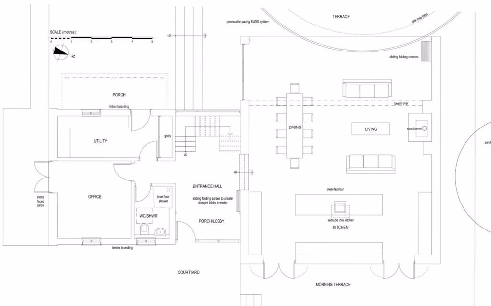
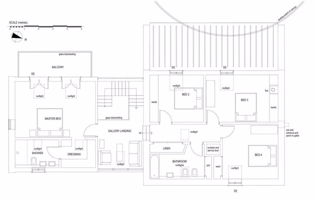
Plot for sale
This exceptional building plot is pleasantly located within the grounds of an historic Grade II listed building in a lovely sylvan setting about 2 miles north of the cathedral city of Hereford. Local amenities include, a church, shop, exclusive health and leisure club (Holmer Park), a public ...
Plot for sale
Description
This exceptional building plot is pleasantly located within the grounds of an historic Grade II listed building in a lovely sylvan setting about 2 miles north of the cathedral city of Hereford. Local amenities include, a church, shop, exclusive health and leisure club (Holmer Park), a public ...
Contact Agent
Smart Picks — Professionals Relevant to This Land
Based on this property's key features, here are the specialists you may want to consult as part of your due diligence: land agents, rural solicitors and planning consultants.

Land Agents
Essential for navigating the land market, finding buyers, and securing the best price.

Rural Solicitors
Significant investment (£225K+) requires legal expertise for conveyancing, title checks, and transaction security.

Planning Consultants
Planning restrictions or development potential requires specialist consultation.
Location
Church Way